
ЧАО «Аркада», золотой партнер компании Autodesk, приглашает Вас принять участие в вебинаре, посвященном вопросам создания конструктором документации в Autodesk Revit и практике обмена и согласования проектной документации через облачную платформу BIM 360.
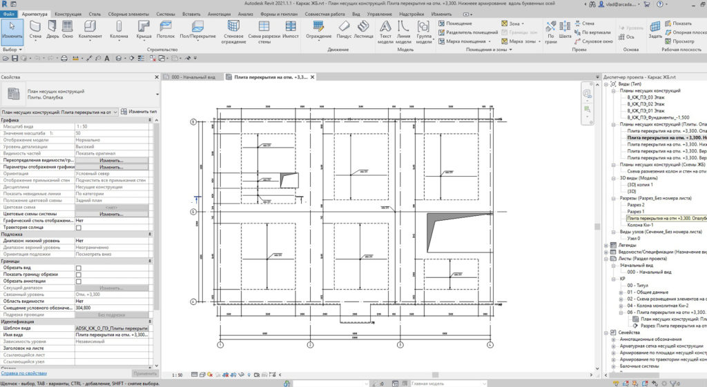
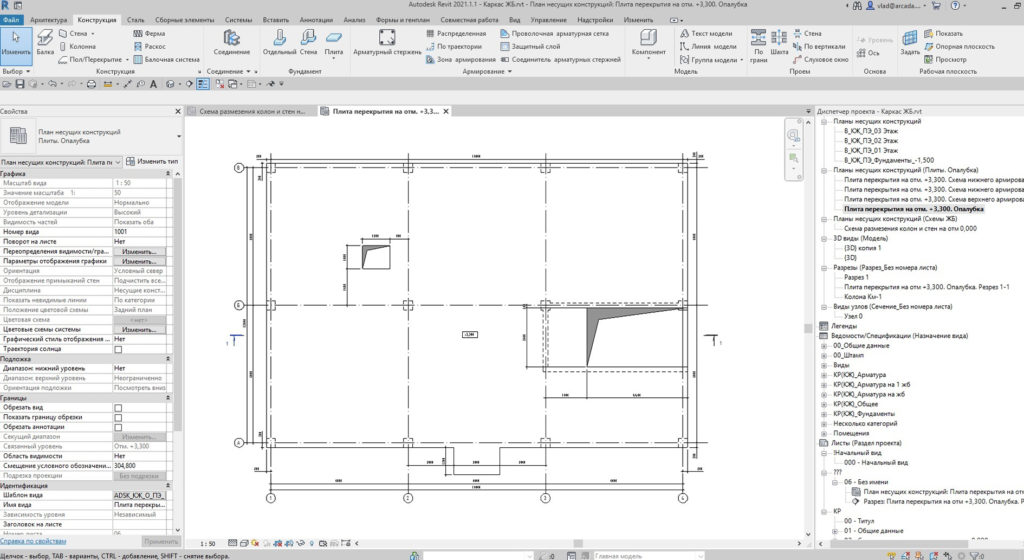
На нашем вебинаре мы рассмотрим процесс армирования плиты перекрытия в Autodesk Revit 2021 и продемонстрируем конструкторам как на основе шаблона ADSK_RU создавать опалубочные чертежи и чертежи армирования плиты перекрытия нижней зоны в двух направлениях.



Шаблон ADSK_RU_ШаблонПроекта_КЖ_r2019_v1.2.rte помогает конструктору упростить и ускорить работу в Autodesk Revit и его можно скачать по ссылке http://surl.li/gpfe .
Также будут показаны способы выгрузки документации в облачную службу Autodesk BIM 360 Docs. Используя в своей работе платформу BIM 360 конструкторы могут обмениваться информацией как внутри проектной группы с архитекторами и инженерами, так и вне ее, передавая документацию службе заказчика и монтажно-строительным организациям на рассмотрение и согласование, оперативно получая замечания и корректировки.
Рис.4. Загрузка документации в проект созданный в облачной службе BIM360 DocsПроцесс обмена информацией проходит моментально и не требует разворачивания общих серверов и распечатку и отправку документации. Модели, чертежи, накладные, нормативные документы, задания на проектирование и т.д., находятся в облаке и любой из участников процесса проектирования, строительства и эксплуатации имеет доступ к документации из любой точки мира как с персонального ПК, так и с мобильного устройства.
Приглашаем конструкторов присоединиться к нашему мероприятию. По окончанию вебинара у Вас будет возможность задать вопросы нашим специалистам.
Ведущий и докладчик:

Яловенко Владимир Ильич