
ЧАО «Аркада», золотой партнер компании Autodesk, приглашает Вас принять участие в вебинаре, посвященном вопросам создания конструктором документации в Autodesk Revit и практике обмена и согласования проектной документации через облачную платформу BIM 360.
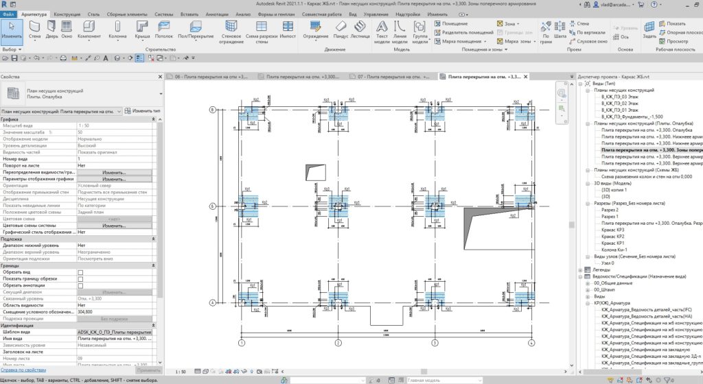
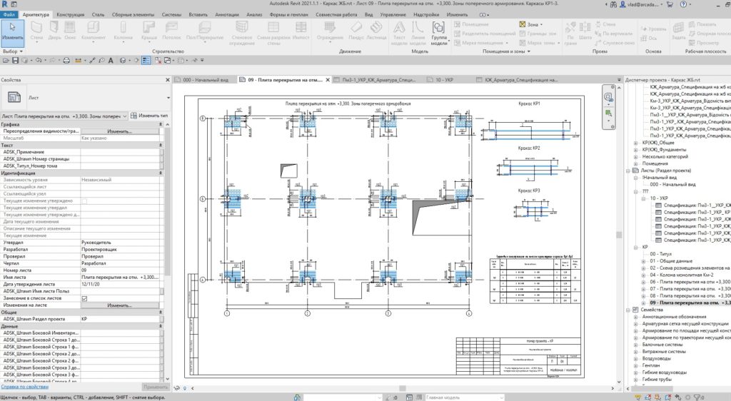
На нашем вебинаре мы продолжим рассмотрение процесса армирования плиты перекрытия в Autodesk Revit 2021 и продемонстрируем конструкторам как на основе шаблона ADSK_RU создавать чертежи армирования плиты перекрытия монтажными деталями и каркасами поперечного армирования. Также будет показана настройка и вынос на листы «Спецификации на монолитную железобетонную плиту перекрытия», «Ведомости деталей» и «Ведомости расхода стали на элемент».



Шаблон ADSK_RU_ШаблонПроекта_КЖ_r2019_v1.2.rte допомагає конструктору спростити і прискорити роботу в Autodesk Revit і його можна завантажити за посиланням http://surl.li/gpfe .
Також будуть показані способи вивантаження документації в хмарну службу Autodesk BIM 360 Docs. Використовуючи у своїй роботі платформу BIM 360 конструктори можуть обмінюватися інформацією як всередині проектної групи з архітекторами і інженерами, так і поза нею, передаючи документацію службі замовника і монтажно-будівельним організаціям на розгляд і узгодження, оперативно одержуючи зауваження і коригування.

Процесс обмена информацией проходит моментально и не требует разворачивания общих серверов и распечатку и отправку документации. Модели, чертежи, накладные, нормативные документы, задания на проектирование и т.д., находятся в облаке и любой из участников процесса проектирования, строительства и эксплуатации имеет доступ к документации из любой точки мира как с персонального ПК, так и с мобильного устройства.
Приглашаем конструкторов присоединиться к нашему мероприятию. По окончанию вебинара у Вас будет возможность задать вопросы нашим специалистам.
Ведущий и докладчик:
Яловенко Владимир Ильич