
Сучасна ситуація вимагає від українського суспільства масштабної організації робіт з реконструкції зруйнованої та створення нової інфраструктури. Найважливішим фактором є підготовка фахівців, здатних використовувати в своїй роботі сучасні технології. В рамках спільного проєкту за підтримки Міністерства цифрової трансформації України компанія Trimble та її авторизований партнер ПрАТ «Аркада» реалізують проєкт впровадження в навчальний процес закладів вищої освіти програмно-технічних рішень для проєктування та будівництва мостів.
Нещодавно компанія Аркада провела навчання викладачів Харківського національного автомобільно-дорожнього університету за програмою «Проєктування мостових споруд в Tekla Structures». Курс був присвячений технології BrIM (Bridge Information Modeling) та проєктуванню мостів із використанням BIM-платформи Tekla Structures.
BrIM — це сучасна методологія цифрового проєктування мостів, яка об’єднує геометричну 3D-модель конструкції з усією супровідною технічною інформацією. Такий підхід забезпечує повний життєвий цикл об’єкта — від концепції та проєктування до будівництва, експлуатації й ремонту. BrIM-модель містить не лише геометрію, але й відомості про матеріали, характеристики елементів, технологічні вимоги, історію обслуговування та зміни конструкції, що робить її ключовим інструментом для ефективного управління інфраструктурними об’єктами.

Мал.1. Елемент навчальної моделі мостової споруди із залізобетону
Учасники курсу ознайомилися з основними інструментами Tekla Structures для проєктування залізобетонних і металевих конструкцій. Під час практичних занять було створено детальні 3D-моделі мостів із залізобетону, що включали палі, ростверки, стійки, ригелі, балки проїзної частини та плити. Особливу увагу приділили процесам армування, використовуючи весь спектр інструментів і стандартних компонентів програми.

Мал.2. Елемент навчальної моделі мостової споруди з металевих конструкцій
На другому етапі учасники працювали з металевими конструкціями — моделювали каркаси, коробчасті балки, колони, спіральні балки, а також застосовували болтові та зварні з’єднання. Крім того, опанували створення розрахункових аналітичних моделей і власних користувацьких компонентів для обох типів конструкцій.

Мал.3. Навчальна модель. Створення розрахункової аналітичної моделі
Важливою частиною BrIM-процесу є отримання максимально точної вихідної інформації про існуючі об’єкти, і для цього активно використовується лазерне 3D-сканування. Сучасні лазерні сканери Trimble дозволяють з міліметровою точністю відтворити геометрію мостів, шляхопроводів та інших споруд, створюючи високоточні хмари точок. Такі дані легко інтегруються у Tekla Structures та інші BIM-програми, що дає змогу точно поєднувати проєктну та фактичну інформацію, виявляти деформації, контролювати будівельні роботи та планувати ремонти.
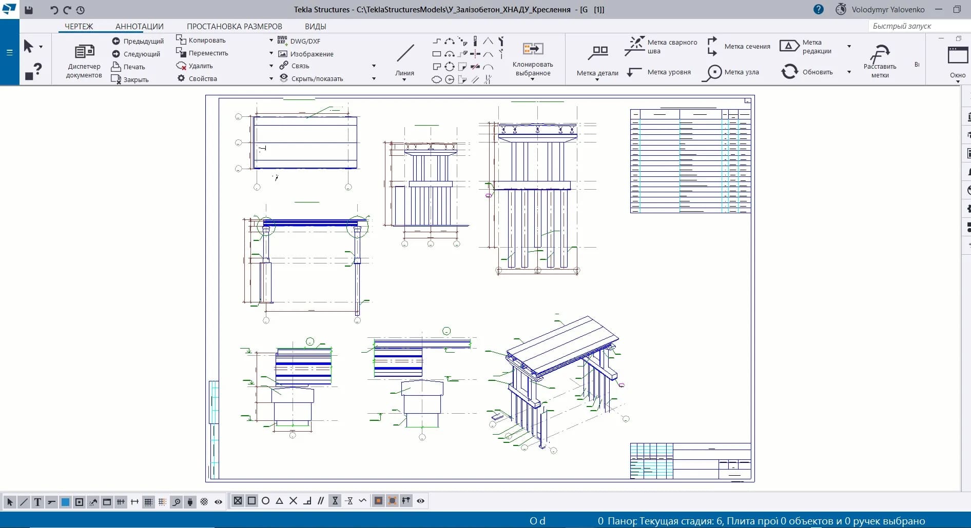
Заключна частина навчання була присвячена формуванню робочих креслень — від планів і схем розташування конструкцій до детальних креслень збірок і окремих елементів.

Мал.4. Навчальна модель. Створення креслеників
У межах співпраці Trimble безкоштовно передала ХНАДУ сучасне обладнання для лазерного сканування та ліцензійне програмне забезпечення, що забезпечить університету можливість проводити навчання та дослідження на рівні провідних світових інженерних шкіл.
Таким чином, завдяки співпраці ХНАДУ, компанії АРКАДА та Trimble, українські інженери отримують доступ до сучасних інструментів світового рівня, що дозволяє ефективно проєктувати, модернізувати та обслуговувати складні інфраструктурні об’єкти за найвищими стандартами.
Щоб купити підписку на програмне забезпечення Tekla Structures,
звертайтесь до менеджерів відділу продажів АРКАДА, авторизованого реселера компанії Trimble ,
за телефоном: +380 44 502-33-35,
або за e-mail: common@arcada.com.ua